
Floor Plans
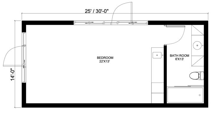
daisy cabana
30' x 14' | 420 SQFT
1 bedroom & 1 full bathroom
Model Features:
1 Bedroom and 1 full bathroom
Impact windows and doors
Split unit connection
LED Lights
Tankless water heater
Florida State Approved
Interested in building this plan? Fill out the form below!