
Floor Plans
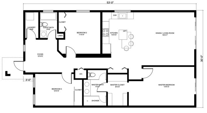
HIBISCUS
30' x 53' | 1,590 SQFT
3 bedrooms & 2 full bathrooms
Model Features:
Optional 13' x 22' sqft Garage
3 bedrooms & 2 full bathrooms
Full kitchen
Impact windows and doors
Central A/C duct system
LED Lights
Tankless water heater
Utility room
Connections for washer and dryer
Florida State Approved
Interested in building this plan? Fill out the form below!