
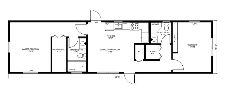
Floor Plans
orchid
58' x 15' | 870 SQFT
2 bedrooms & 2 full bathrooms
Model Features:
2 Bedrooms and 2 full bathrooms
Full Kitchen with island
Impact windows and doors
Central A/C duct system
LED Lights
Tankless water heater
Utility room
Connections for washer and dryer
Florida State Approved
Interested in building this plan? Fill out the form below!